What type of services do you need?
We can create plans to the style you are looking for, or the latest trends: craftsman, modern, contemporary, barndominium, etc (Many more styles to choose from). Below is just a few examples showing the diversity of projects, we have developed for customers. One of the hardest things to get post-construction, is documented images of the finished assembly.
Most Recent projects!
Completed!
.jpg)
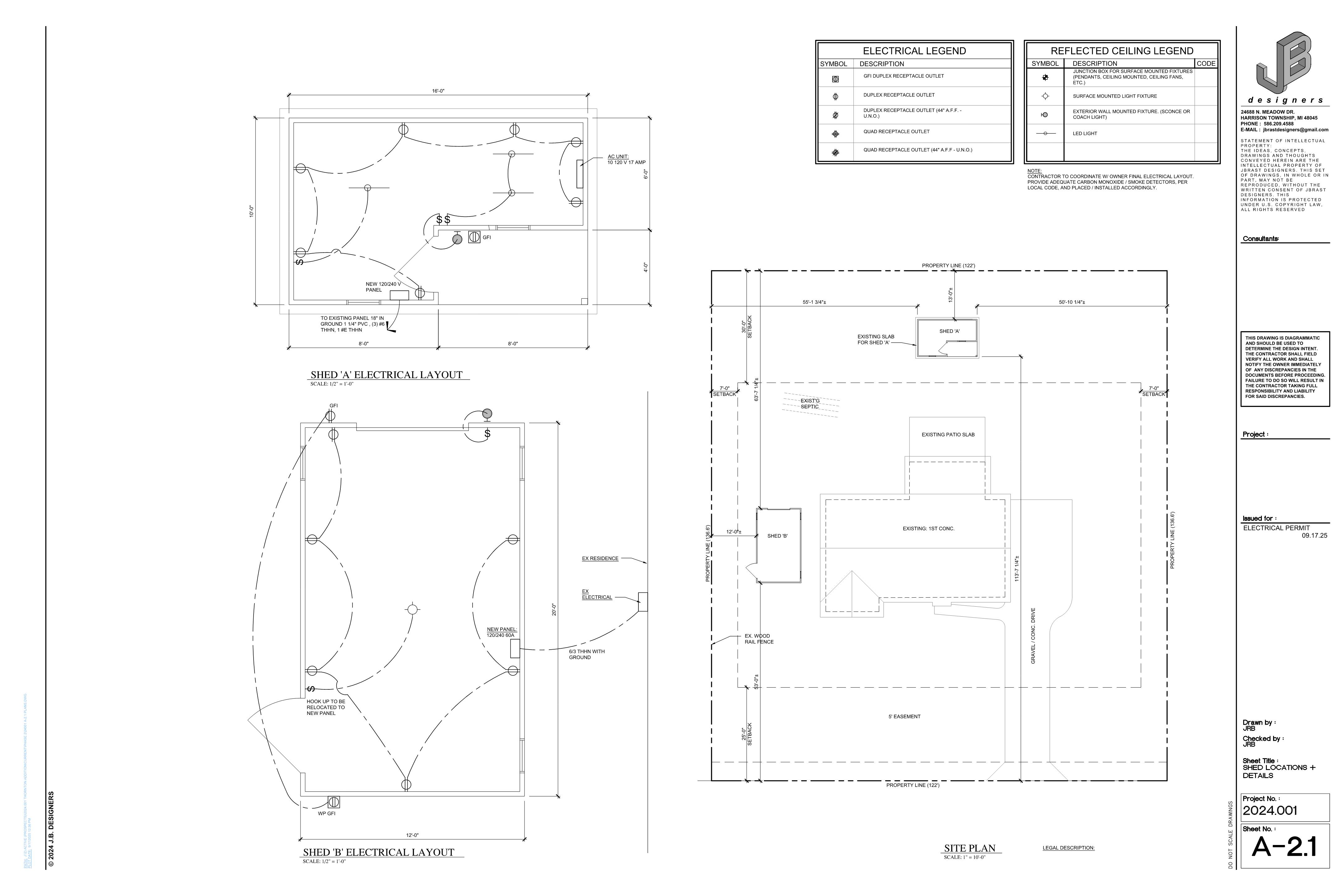
Thornton Residence
2024.001 (Apopka, FL)Electrical (permit package) drawing assistance, for small project (Previously conceptually designed: master bedroom addition).
Latest project!

Mehta Addition
2025.001 (Rochester Hills, MI)(In design phase) Home owner requested an elevator addition.
Abel Interior Renovation
2024.005 Interior Renovation (Rochester Hills, MI)
Worked with local Interior Designer. (Click to see more)
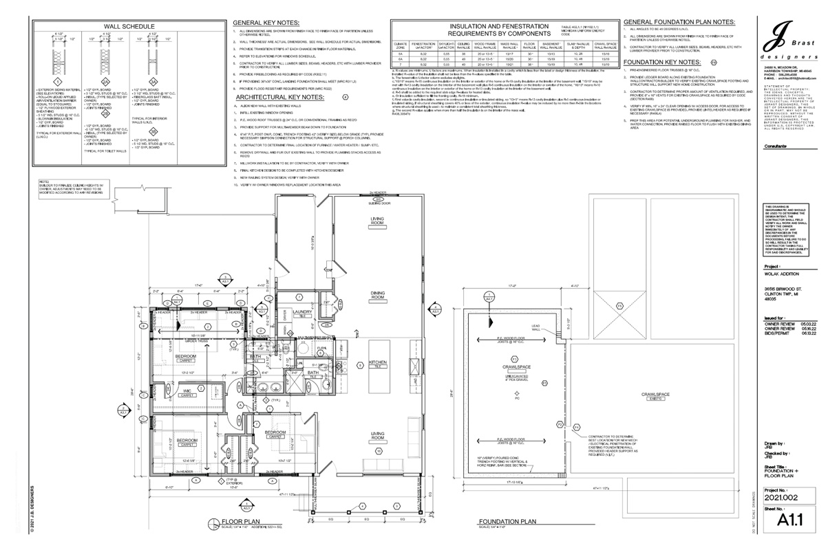
Wolak Addition
2021.002 Floor Plan (Clinton Twp, MI)
Addition to existing residence (Not Constructed)
McHenry Addition
2019.001 Elevation Design (Grosse Pointe Woods, MI)
Addition to existing residence
Emerick Residence
2017.002 Custom Home (Lexington, MI)
New construction. Incorporated all clients inspirations / vision into project. Owner selected all finishes! (Click to see more).
Construction by: Huron Homes Construction Inc
McAffrey Addition
2012.002 Elevation Design (Clawson, MI)
Addition to existing residence
Pomerville Addition
2011.003 Side/Rear Elevation (Sylvan Lake, MI)
Addition to existing residence
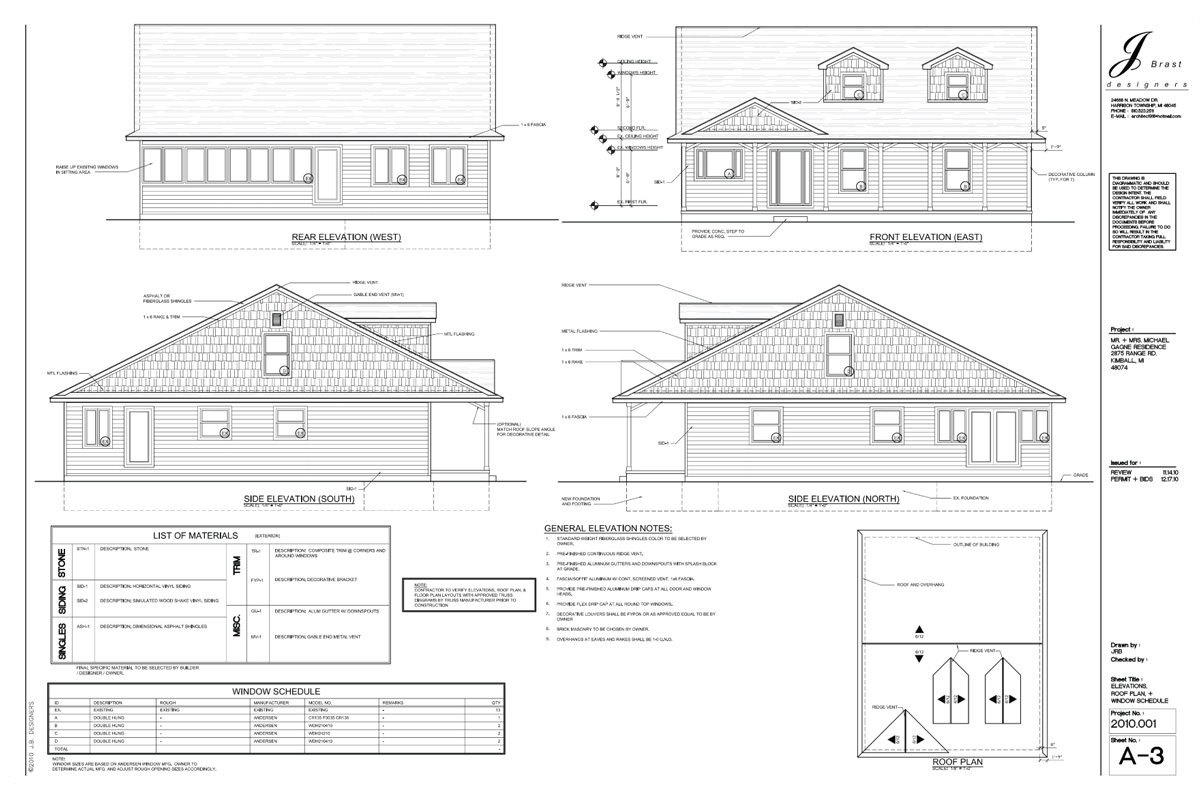
Gagne Addition
2010.001 Addition / Renovation (Kimball, MI)
Second story addition to existing residence (Not Constructed)
Overland Residence
2002.006 Custom Home (Lexington, MI)
New construction
Mahn Residence
2002.004 Custom Home (Lexington, MI)
(Not Constructed)
Seghi Residence
2002.001 Front Elevation (Burtchville, MI)
New construction
Watson Residence
2000.001 Front Elevation (Lexington, MI)
New construction
Flesche Residence
1998.001 Front Elevation (Harsens Island, MI)
New construction (First project with college roommate)

.jpg)